Rif: G. GIOLITTI
ROMA
ROMA - zona Esquilino
Roma, Via Giolitti – Ampio immobile parzialmente da ristrutturare in palazzo d'epoca
Proponiamo in vendita in una delle vie storiche della capitale, via Giolitti, un appartamento di ampia metratura con pavimento in marmo, situato al primo piano di un elegante stabile d'epoca attiguo al Tempio di Minerva.
La posizione è strategica e centralissima, a pochi minuti a piedi dalla Stazione Termini e da Piazza Porta Maggiore servita da numerose fermate di mezzi pubblici.
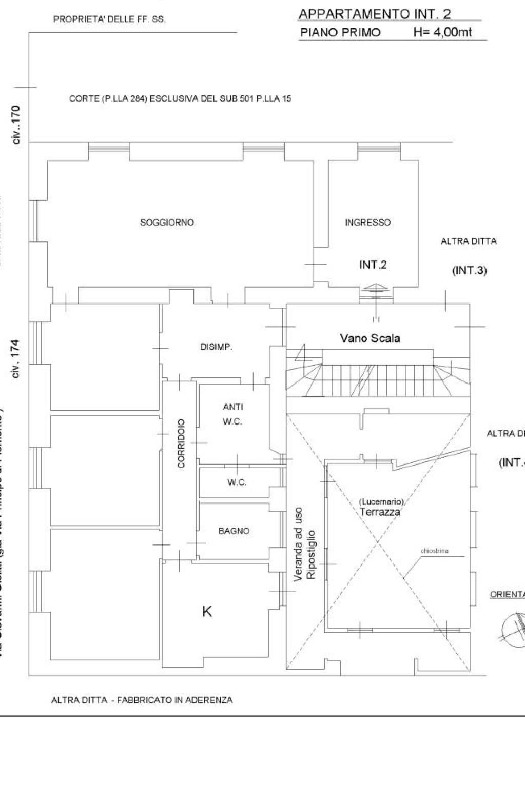
La proprietà, presenta una pianta regolare e ambienti ampi e luminosi, e risulta cosi disposta: • Ingresso • Salone doppio • Camera attualmente adibita a studio • Soggiorno • Tre camere da letto • Due bagni (uno con antibagno) • Cucina abitabile • Comoda veranda utilizzabile anche a zona lavatoio • tre rispostigli • Terrazzo con affaccio interno di circa 30 mq.
L'immobile è parzialmente da ristrutturare ed offre spazi generosi e altezze importanti, ideali per chi cerca un investimento con ampie possibilità di personalizzazione ed allo stesso tempo cerca di conservare il fascino dell'architettura storica.
L'immobile per via delle sue caratteristiche si presta a molteplici soluzioni abitative nonché ad investimenti con potenziale ad uso ricettivo.
Completano la vendita:
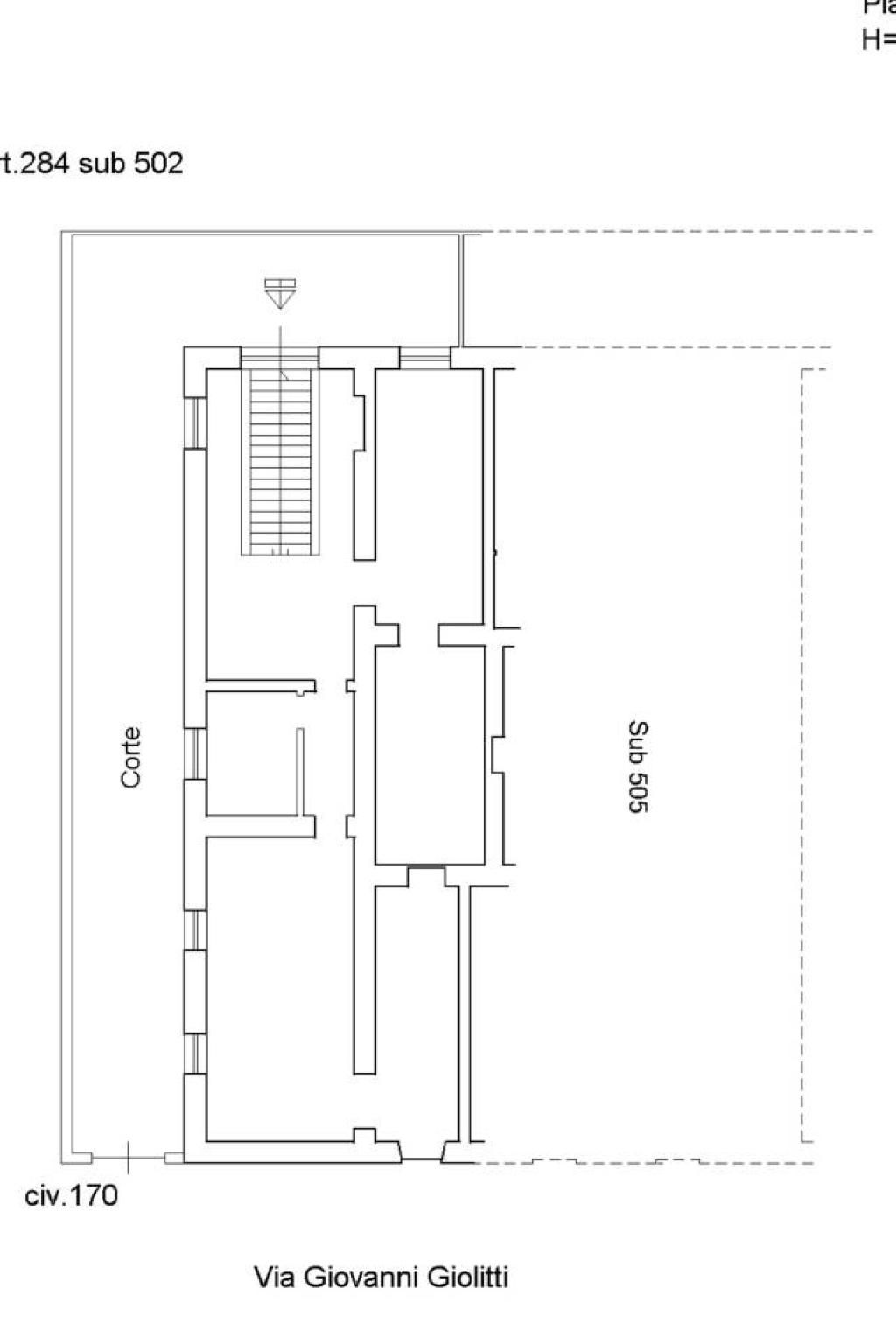
- una quota di comproprietà, pari al 50%, di un'unità immobiliare a sé stante costituita da una cantina di circa 150 mq con annessa corte di pertinenza;
- l'utilizzo della terrazza condominiale da cui si gode una splendida vista panoramica.
Il prezzo è così suddiviso:
-Eu.600.000,00 relativo all'appartamento;
-Eu.70.000,00 relativo alla quota di comproprietà, pari al 50%,di un'unità immobiliare a sé stante costituita da una cantina di circa 150 mq con annessa corte di pertinenza.
In aggiunta, sono stati oggetto di delibera i lavori di rifacimento della facciata la cui conclusione è prevista entro il mese di giugno che valorizzeranno ancor di più gli elementi architettonici di pregio dello stabile.
Per maggiori info e visite 06.87652705 o geimimmobiliare@gmail.com.
Proponiamo in vendita in una delle vie storiche della capitale, via Giolitti, un appartamento di ampia metratura con pavimento in marmo, situato al primo piano di un elegante stabile d'epoca attiguo al Tempio di Minerva.
La posizione è strategica e centralissima, a pochi minuti a piedi dalla Stazione Termini e da Piazza Porta Maggiore servita da numerose fermate di mezzi pubblici.
La proprietà, presenta una pianta regolare e ambienti ampi e luminosi, e risulta cosi disposta: • Ingresso • Salone doppio • Camera attualmente adibita a studio • Soggiorno • Tre camere da letto • Due bagni (uno con antibagno) • Cucina abitabile • Comoda veranda utilizzabile anche a zona lavatoio • tre rispostigli • Terrazzo con affaccio interno di circa 30 mq.
L'immobile è parzialmente da ristrutturare ed offre spazi generosi e altezze importanti, ideali per chi cerca un investimento con ampie possibilità di personalizzazione ed allo stesso tempo cerca di conservare il fascino dell'architettura storica.
L'immobile per via delle sue caratteristiche si presta a molteplici soluzioni abitative nonché ad investimenti con potenziale ad uso ricettivo.
Completano la vendita:
- una quota di comproprietà, pari al 50%, di un'unità immobiliare a sé stante costituita da una cantina di circa 150 mq con annessa corte di pertinenza;
- l'utilizzo della terrazza condominiale da cui si gode una splendida vista panoramica.
Il prezzo è così suddiviso:
-Eu.600.000,00 relativo all'appartamento;
-Eu.70.000,00 relativo alla quota di comproprietà, pari al 50%,di un'unità immobiliare a sé stante costituita da una cantina di circa 150 mq con annessa corte di pertinenza.
In aggiunta, sono stati oggetto di delibera i lavori di rifacimento della facciata la cui conclusione è prevista entro il mese di giugno che valorizzeranno ancor di più gli elementi architettonici di pregio dello stabile.
Per maggiori info e visite 06.87652705 o geimimmobiliare@gmail.com.
Consistenze
| Descrizione | Superficie | Sup. comm. |
|---|---|---|
| Principali | ||
| Immobile - 1° piano | 179 Mq | 179 Mqc |
| Totale | 179 Mqc | |
